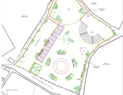
Ανοιχτή πρόσκληση Κοινωνικής Διαβούλευσης για την σχεδιαζόμενη κεντρική πλατεία των Καλυβίων Πεζούλας απευθύνει ο Δήμος Λίμνης Πλαστήρα. Για το σκοπό αυτό αγοράστηκε οικόπεδο έκτασης 3.300 μέτρα, βρίσκεται πλησίον της Εκκλησίας στην κάτω πλευρά του δρόμου. Στόχος της δημοτικής αρχής είναι να δημιουργηθεί κεντρική πλατεία στον οικισμό, τόσο για τις κοινωνικές και πολιτιστικές ανάγκες των μονίμων κατοίκων, όσο και των επισκεπτών. Σύμφωνα με τον σχεδιασμό, εκτός του χώρου πλατείας, προβλέπεται παιδική χαρά, χώρος για δημιουργική απασχόληση παιδιών, χώρος πολιτισμού και εκδηλώσεων (υπαίθριο θέατρο) δενδροστοιχίες, χώρος στάθμευσης αυτοκινήτων, βοηθητικός χώρος, κ.α.
Συντάκτης της μελέτης είναι η συνεργάτιδα κ. Θέη Κανδήλα, πολεοδόμος – χωροτάκτης, η οποία ολοκλήρωσε την ά φάση της μελέτης, την οποία παρουσίασε στο Τοπικό Συμβούλιο Πεζούλας και στους Πολιτιστικούς Συλλόγους της Κοινότητας. Όσοι θέλουν να καταθέσουν ιδέες, προτάσεις, παρατηρήσεις, μπορούν να τις στέλνουν στην ηλεκτρονική διεύθυνση th.kandila@gmail.com και θα αξιολογηθούν όλες.
Ο δήμαρχος κ. Παναγιώτης Νάνος σε δήλωσή του αναφέρει: «Με την κοινωνική διαβούλευση ολοκληρώνεται ο σχεδιασμός μιας κεντρικής πλατείας που λείπει από τα Καλύβια Πεζούλας. Δημιουργούμε μία σύγχρονη υποδομή, η οποία καλύπτει τις ανάγκες των κατοίκων, βελτιώνεται η ποιότητα ζωής, προάγεται ο Πολιτισμός, αναβαθμίζεται το τουριστικό προϊόν. Ήδη έχουμε ολοκληρώσει την μελέτη, η οποία θα λάβει τελική μορφή μετά την κοινωνική διαβούλευση. Το έργο έχει εξασφαλισμένες πιστώσεις από το Ειδικό Αναπτυξιακό Πρόγραμμα Αγράφων. Μία ακόμη δέσμευση της δημοτικής αρχής γίνεται πράξη».













